ads

ads
山下公園周辺の安い駐車場 土日の混雑は 上限 最大料金 や予約できる所 中華街フリーク 横浜元町中華街の口コミを子連れママがブログで紹介
釣り場案内人サトシ
ホームズ グランシティ山下公園ユーロプレイスの建物情報 神奈川県横浜市中区山下町75 3
シーバスにニューフェイス sea bass zero シーバス ゼロ で横浜港散策 公式 横浜市観光情報サイト yokohama official visitors guide
東京都日野市 小金井市 世田谷区 パネルトイレ h o c株式会社 本社 長崎県大村市
中華街でトイレに困ったら 回鍋肉おじさんこんにちは
山下公園の見どころレビュー イベントや名物は何がある ママいこっ
マンションノート ラ メージュ山下公園
横浜 公園の公衆便所 大内山雑記帳
イチイコーポレーション
元町 中華街駅 中華街 山下公園側改札内トイレが全面リニューアル パウダーコーナーやオムツ交換台も
山下公園のオムツ替え台情報
足元が洪水のよう 横浜市がオススメしていた謎の公衆トイレ さわやかトイレ の謎に迫る はまれぽ com 横浜 川崎 湘南 神奈川県の地域情報サイト
神奈川県ー山下公園 真昼の心霊散歩plus
facebook
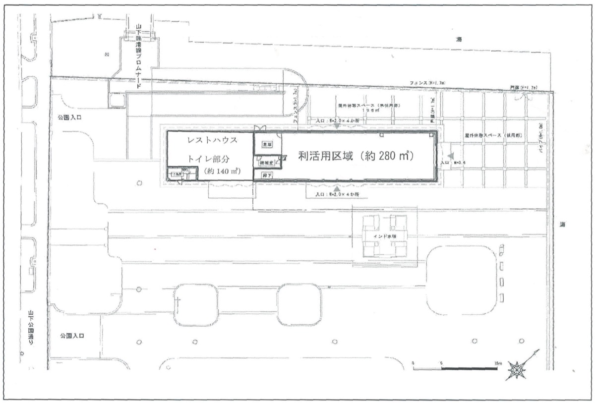
山下公園 レストハウス rest house 公共施設 デザイン
山下公園a1 23 381 山下公園へ戻ります 大桟橋側のレストハウスにトイレがあります inserted by fc2 system
健軍上山下公園 熊本市東区 松尾神社の裏にある健軍校区最大の公園
山下公園 トイレ 横浜市中区 トイレ 231 0023 の地図 アクセス 地点情報 navitime
beyond architecture
山下公園 氷川丸の船もバラ園もある 子供が楽しめる6つのポイント アクセス方法
山下児童公園 山下 津山瓦版
閉店 ハッピーローソン山下公園店は 赤ちゃん 子供連れに嬉しいコンビニ 横浜中華街に行く方は必見 しゅふのわ com
beyond architecture
happy lawson山下公園店 キッズスペースをプチリニューアルしました ローソン研究所
横浜 山下公園でまったり癒しのみなとみらいデートプラン 縁結び大学
山下公園にあるハッピーローソンを徹底取材 子供連れにおすすめです たびこふれ
アメリカ山公園は多目的トイレが男女別に2ヵ所ずつある穴場的トイレ充実スポット 横浜バリアフリー研究所
tadkawakita sakura ne jp
ポケモンgo 横浜goフェスタ現地レポート 山下公園を中心に色違いやスペシャルリサーチ 注意点をご紹介
ads
You May Like ads