ads

ads
平屋建て住宅の注意点とポイントを紹介 間取り事例あり takumiの住宅 建築相談所
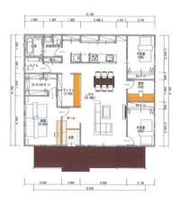
ウッドデッキの似合う5ldkの平屋
平屋 トイレ2つ のアイデア 33 件 間取り 間取り図 平面図
トイレが2つある平屋の間取り スムーズな生活動線の確保と混雑回避でノンストレス 一戸建て家づくりのススメ
中庭のある平屋 34坪 家づくりを始めるその前に
平屋住宅 30坪 3ldk 新築プラン 価格と間取り ジャストホーム 平屋 二階建ての家を適正価格と快適な間取りで建てる
平屋建て住宅 間取りと価格
平屋 株式会社パパまるハウス 公式 新築一戸建て住宅のハウスメーカー
トイレに窓はいらない 新築一戸建てトイレの失敗ポイント 暖かい家づくり 一条工務店 平屋i smartで快適生活
4ldkの間取り図例10選 特徴やメリットをご紹介 幸せな暮らし
20坪 25坪の間取り図 夢のような素敵空間13選 広さや費用も知っておこう イエマドリ
平屋でもやっぱりトイレは2つ欲しい 平屋生活 憧れの平屋を建ててみた
特徴別 4ldk平屋の間取り20選 失敗を防ぐポイントは5つ
平屋建て住宅の注意点とポイントを紹介 間取り事例あり takumiの住宅 建築相談所
木の家 シミュレーター
平屋住宅 きっと理想の間取りが見つかる 今人気の15パターン 一戸建て家づくりのススメ
間取りについて質問です 平屋で 35坪で添付の間取りです 田舎の目の前が田園の土 教えて 住まいの先生 yahoo 不動産
4ldkの間取り図例10選 特徴やメリットをご紹介 幸せな暮らし
4ldkの平屋の間取り集 30 40坪の注文住宅を建てる 注文住宅の教科書 fp監修の家づくりブログ
平屋のメリットとは 間取りを考える際のポイントを知ろう 注文住宅の無料相談窓口auka アウカ
ウッドデッキの似合う5ldkの平屋
平屋の間取りについてアドバイスを下さい 3 新築を平屋で立てようと 一戸建て 教えて goo
平屋間取りのインテリア実例 roomclip ルームクリップ
ads
You May Like ads