ads

ads
和式トイレにもメリットがある 洋式トイレへのリフォームは必然 クラシアン
livedoor blog
汲み取り式トイレの気になる臭いを激減してくれる簡易水洗トイレの構造やおすすめ商品を紹介 トイレリフォームの費用やおすすめの業者を選ぶなら トイレ リフォームの神様
簡易水洗トイレの詰まりの原因と対処方法とは 家庭にあるもので対応 トイレつまり 蛇口水漏れトラブル 税込3 300円 スピード対応 水110番
www2 ttcn ne jp
バイオトイレとは 特徴と仕組みを解説します バイオトイレの製造販売 大央電設工業株式会社
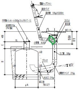
jp2005143960a 汲み取り式トイレの排気構造 google patents
ベンチレーターが壊れた su giのブログ 仕事と趣味の狭間 みんカラ
第10回 汲み取り式物件 なかなか良かったりする 楽待不動産投資新聞
バキュームカーの構造と開発史 tank lorry museum
ぼっとん便所に入れられて死んだ人の事件 これってなんの事件ですか yahoo 知恵袋
日本の便所 wikipedia
汲み取り式トイレで起こりうるトラブル
www 21water jp
簡易水洗式トイレ 汲取り式トイレからの改良リフォーム ユキさんのリフォーム業務日誌 新潟県三条市 フォレストスタジオ
トイレの水位がいつもと違う場合の対処
ハビタット フォー ヒューマニティ ジャパン
汲み取り式トイレ ボットン便所 から洋式水洗トイレにリフォーム rabbit punch
汲み取り式トイレで起こりうるトラブル
汲み取り式トイレで起こりうるトラブル
ボロ家復活作戦 簡易水洗便器の施工
下水道 浄化槽 汲み取り式の違い
埼玉県さいたま市岩槻区のリフォーム事例 汲み取り式 ぼっとん便所 工事 リフォームするなら スリーエス企画 有限会社まで
有限会社ウッズ
簡易水洗トイレで汲み取り式トイレとぼっとん便所をリフォーム その費用は
汲み取り式トイレの方必見 水洗トイレリフォームにまつわる費用や工期 ポイントなど集めてみました 戸建てリフォームの学び舎
ぼっとんトイレとは 田舎に移住する人が知っておきたいトイレ事情 レスキューラボ
し尿くみ取りのご案内
ads
You May Like ads